Arnott Street

Feilding, Manawatu

Secure one of four well-positioned sections in the growing Arnott Street development. With established subdivisions like Lawry Lane and Kiwitea Grove nearby, this location offers a smart blend of growth and space, with rural outlooks across neighbouring properties. All sections have power and sewer connections to the boundary, only a water tank installation is required.

Available sections:

• Lot 2: 649sqm (more or less)
• Lot 3: 621sqm (more or less)
• Lot 4: 621sqm (more or less)
• Lot 5: 812sqm (more or less)

For section enquiries, contact Stephanie Hale at Property Brokers Feilding on 027 623 8264.

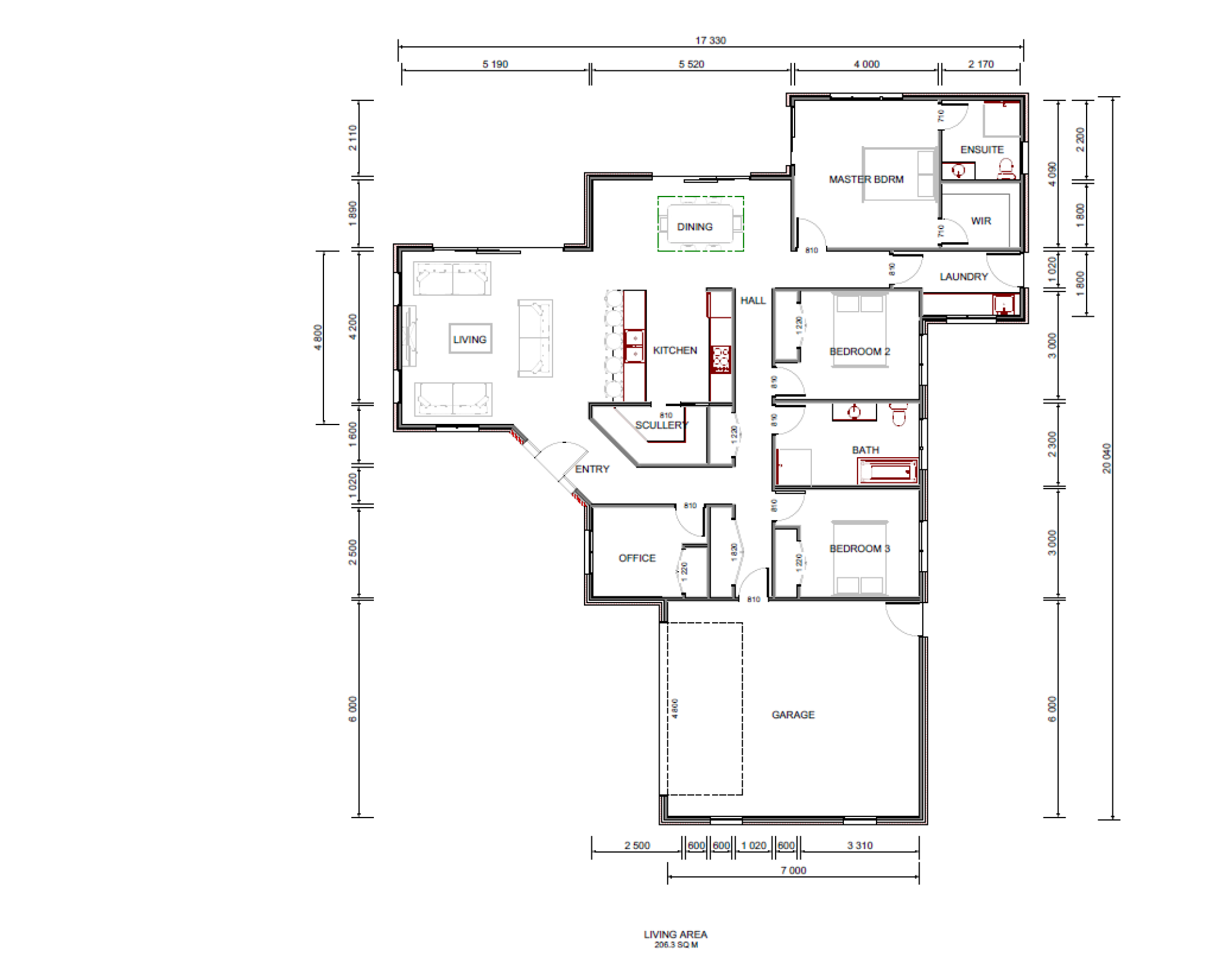
Size
  • Land Area: 812
  • Floor Area: 206

Floor Plan

Request Pricing

More House & Land Packages

Truebridge Drive By Slate

Waitarere Beach

House & Land Package Opportunity By Slate

Section For Sale $215,000 | Hawera

St Laurent Way, Ohau By Slate

Ohau, Horowhenua